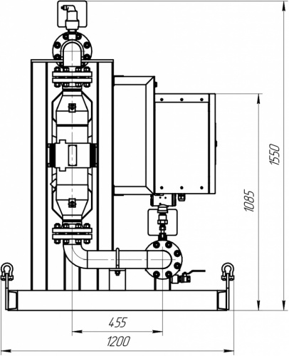
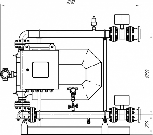
Мобильный комплекс учета «ЭМИС-Эско 2210» (МКУ-ЭЭ-2210) на основе кориолисового счетчика-расходомера «ЭМИС-МАСС 260»
Мобильный комплекс учета на базе массового кориолисового расходомера «ЭМИС-МАСС 260» предназначен для измерения расхода и дозирования нефтепродуктов и других жидких и газообразных сред:
- в процессе приема и отпуска из нефтеналивных судов, включая операции по сливу/наливу нефтепродуктов, бункеровке судов и т.д.;
- на нефтебазах в процессе приема/отпуска топлива;
- в системах перекачки сжиженного углеводородного газа (СУГ) и других нефтепродуктов на модульных и стационарных АГЗС;
- в наземных передвижных средствах транспортировки и заправки и других технологических процессах, требующих применения мобильного комплекса учета.
Дозирование и измерение расхода возможно осуществлять как в единицах массы (килограммах, тоннах и т.д. по выбору), так и в единицах объема (литрах, метрах кубических и т.д. по выбору). Последнее функциональное свойство обусловлено возможностью кориолисового счетчика-расходомера «ЭМИС-МАСС 260» осуществлять прямое измерение плотности, массы (и массового расхода) и последующее вычисление объемного расхода.
Мобильный комплекс учета представляет собой рамную конструкцию с установленным на ней кориолисовым счётчиком- расходомером «ЭМИС-МАСС 260» и контроллером, расположенным во взрывозащищенном шкафу. В состав МКУ-ЭЭ-2210 также входят трубная обвязка, демпферы резиновые для компенсации вибрации, задвижки с электроприводом, управление которыми возможно осуществлять при помощи контроллера.
На месте эксплуатации достаточно произвести подключение с помощью гибких шлангов и открыть задвижки.
В контроллере возможно настроить несколько точек учета, и по каждой точке отдельно хранить показания. Например, если МКУ используется на нескольких объектах.
Для комплектации МКУ-ЭЭ-2210 возможно применение как интегрального, так и дистанционного исполнения счетчика-расходомера «ЭМИС-МАСС 260», в том числе со стандартным (U-образным) или компактным исполнением первичного преобразователя. При этом в зависимости от необходимых выходных сигналов и прочих эксплуатационных требований рекомендуется применение электронного блока вторичного преобразователя «…-У/УИП-…» (расширенная) или «…-С/СИП-…» (упрощенная).
Мобильный комплекс учета «ЭМИС-Эско 2210» аттестован и имеет действующее описание типа средства измерения №48574-11 от 23.09.2021 г. Сертификация в соответствии с ТР ТС реализована на сложные технические устройства, входящие в комплектацию МКУ, на каждое в отдельности.
Комплектация средствами автоматизации и иным трубопроводным оборудованием, не оказывающим влияние на результаты измерения, может быть осуществлена по желанию заказчика.
Чтобы узнать стоимость приборов «ЭМИС», заполните опросный лист или позвоните по телефону: +7 (351)729-99-12.
Сертификаты
Для получения ТКП необходимо направить исходные данные и указать контактную информацию для обратной связи. Ниже приведён порядок подачи заявки.
Шаг 1. Предоставьте опросный лист
Для подготовки ТКП необходимо направить исходные данные одним из следующих способов:
- Заполнить опросный лист по установленной форме
- Направить свой вариант опросного листа
- Просим приложить карточку предприятия для выставления счета,
- Необходимо указать регион установки прибора /конечного заказчика/ для назначения ответственного менеджера.
Шаг 2. Отправьте заполненный опросный лист по электронной почте sales@emis-kip.ru
Шаг 3. Ожидайте ответа менеджера
После принятия заявки в работу ответственный менеджер направит вам уведомление по электронной почте.
Шаг 4. Уточнить статус заявки можно по телефону +7 (351) 729-99-12, добавочные номера 109, 110.
Программа «ЭМИС-Интегратор» предназначена для мониторинга работы, сбора информации технологического процесса, расхода энергоресурсов и настройки расходомеров «ЭМИС». Программное обеспечение «ЭМИС-Интегратор» защищено свидетельством РФ о государственной регистрации программ для ЭВМ.
Программа использует промышленный протокол ModBus RTU, HART для обмена данными с прибором.
В настоящий момент программа поддерживает следующие приборы:
- ЭМИС-ВИХРЬ 200 базовой, расширенной и двухпроводной версий
- ЭМИС-БАР
- ЭМИС-ДИО 230
- ЭМИС-ПЛАСТ 220
- ЭМИС-МАСС 260 стандартный, С/СИП, У/УИП
- ЭМИС-МАГ 270
- ЭМИС-ВИХРЬ 200 версии 5
Все вопросы и пожелания по работе программы присылайте по адресу: support@emis-kip.ru.
Внимание: Для работы программы, на компьютере должен быть установлен Microsoft .NET Framework 4 или более новая версия данной библиотеки.
Ссылка для скачивания Microsoft .NET Framework 4: https://www.microsoft.com/ru-ru/download/details.aspx?id=17718.
Системные требования:
- операционная система Windows XP, Server 2003 или более поздние версии.
- предустановленная библиотека MS .Net Framework v.4 или более поздние версии
- процессор с тактовой частотой более 1200 МГц
- оперативная память более 128 Мб
Дополнительное оборудование:
Для работы программы, необходимо наличие преобразователя RS- 485 / USB, RS-485 / RS-232. Внимание: приборы ЭВ-200, ЭВ-205 с версией электроники 8 также могут быть подключены с помощью кабеля USB.
